DBID:
442
Systémové číslo:
P15V00000111Evidenční číslo zadavatele:
1/2015
Počátek běhu lhůt:
20.07.2015
Nabídku podat do:
07.08.2015 00:00
Název, druh veřejné zakázky a popis předmětu
- Název: Výměna oken v objektech Krušnohorské polikliniky s.r.o.
- Druh veřejné zakázky: Stavební práce
Stručný popis předmětu:
Výměna stávajících oken a meziokenních izolačních vložek
Postup zadání, předpokládaná hodnota
-
Postup:
VZMR s uveřejněním výzvy
-
Režim veřejné zakázky:
VZ malého rozsahu
- Předpokládaná hodnota:
neuvedena
Zadavatel
- Úřední název: Krušnohorská poliklinika s.r.o.
- IČO: 25030302
- Poštovní adresa:
Žižkova 151
43601 Litvínov
Adresa kontaktního místa
Nabídky, resp. žádosti o účast podávat na:
Krušnohorská poliklinika
Lenka Galbavá
Žižkova 151
43601 Litvínov
Kontakt
Žádné záznamy k zobrazení.
Kvalifikační dokumentace je poskytována elektronicky bez omezení.
Kvalifikační dokumentace - soubory ke stažení
Žádný soubor nebyl přiložen
Zadávací dokumentace je poskytována elektronicky bez omezení.
Zadávací dokumentace - soubory ke stažení
| Název |
Popis |
Jméno souboru |
Velikost |
|
Výzva k podání nabídky
|
|
VÝZVA K PODÁNÍ NABÍDKY.PDF
|
437,26 KiB
|
|
Specifikace zadávací
dokumentace
|
|
Příloha 1 - specifikace
zadávací dokumentace
(požadavky na okna a MIV).docx
|
19,10 KiB
|
|
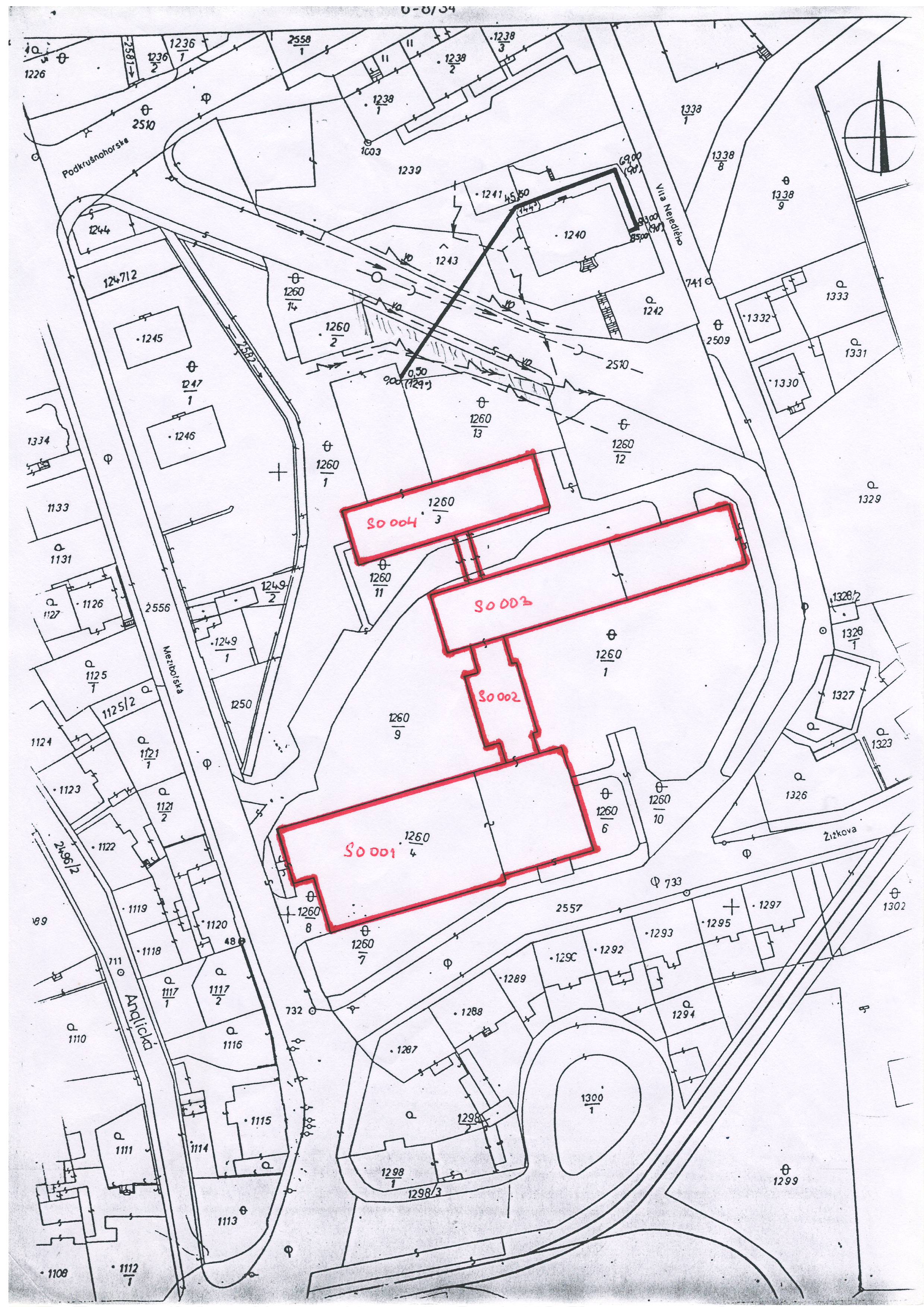
Specifikace zadávací
dokumentace - situační plánek
budov
|
|
Příloha 1.1 situační
plánek.JPG
|
1,16 MiB
|
|
Specifikace zadávací
dokumentace - PBŘ
|
|
Příloha 1.2 - PBŘ.PDF
|
715,55 KiB
|
|
Specifikace zadávací
dokumentace - MIV
|
|
Příloha 1.3 - MIV.PDF
|
103,46 KiB
|
|
Nabídkový list
|
|
Příloha 2 - nabídkový
list.docx
|
20,80 KiB
|
|
Prohlášení uchazeče
|
|
Příloha 3 - prohlášení
uchazeče.docx
|
20,86 KiB
|
|
Smlouva o dílo
|
|
Příloha 4 - smlouva o
dílo.docx
|
39,76 KiB
|
|
Smlouva o dílo - změnový list
|
|
Příloha SOD - změnový list.xls
|
35,50 KiB
|
|
Položkový rozpočet
|
|
Příloha 5 - položkový
rozpočet.XLS
|
155,50 KiB
|
Žádné vysvětlení, doplnění či změny zadávací dokumentace k zobrazení. Zkontrolujte též blok Zadávací dokumentace.